IKG Schuby Titel

Baugrund für Gewerbe Gewerbepark Schleswig-Schuby

Osterdiek
24850 Schuby

Die wichtigsten Daten:

33,00 € *Kaufpreis pro m²
280.600 m² Grundstücksfläche
0,8 Grundflächenzahl
Bebauungsplan 14 Bebaubar nach
Vollerschlossen Erschließungszustand
Gewerbegebiet Baunutzung
390 % Gewerbesteuer Hebesatz

Objekt:

Im Gewerbepark Schleswig-Schuby werden interessante Gewerbeflächen mit direktem Autobahnanschluss angeboten. Mit der Autobahnabfahrt Schleswig-Schuby ist das Gebiet perfekt an die Hauptverkehrsachse zwischen Deutschland und Skandinavien angebunden und damit der ideale Standort für alle Unternehmen, die von Skandinavien auf den deutschen Markt oder von hier aus auf den skandinavischen Markt wollen.

Erschließungszustand:

Es fallen Anschlusskosten für die Versorgungshausanschlüsse an. Glasfaseranschluss ist vorhanden. Der Anschluss kann über die gängigen Breitbandanbieter erfolgen. Außerdem ist bei Bedarf ein Mittelspannungsanschluss verfügbar.

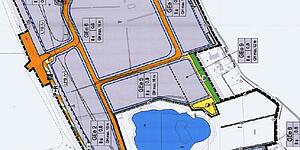
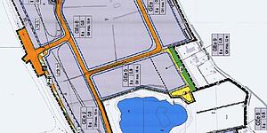
Infos zu Bebaubarkeit:

Die Flächen sind im gültigen B-Plan Nr. 14 als Gewerbeflächen ausgewiesen. Für Teilbereiche gibt es Beschränkungen, die dem B-Plan zu entnehmen sind. Emmissionskontingierung: LEK tags: 60, nachts: 46-47.

Sonstiges:

*Grundstücksbasispreis ab 33 EUR/m² inkl. Erschließungskosten. Es sind Preiszuschläge in Abhängigkeit der Grundstücksnutzung möglich.

Betriebliche Investitionsvorhaben können unter bestimmten Voraussetzungen bezuschusst werden - sprechen Sie uns gerne an.

Alle Angaben in diesem Exposé basieren auf den vom Eigentümer zur Verfügung gestellten Informationen. Eine Haftung für deren Richtigkeit oder Vollständigkeit wird ausgeschlossen. Interessenten wird grundsätzlich empfohlen, das Grundstück vor Erwerb eigenständig, insbesondere im Hinblick auf die Bodenbeschaffenheit, zu untersuchen.

Die Dienstleistungen der WiREG sind für Käufer und Verkäufer unverbindlich und kostenlos.

Kontakt

Ich helfe gern Burkhard Otzen

+49 (0) 461 - 99 92 233
+49 (0) 151 - 27 58 73 20
otzen@wireg.de

Lage:

Die Fläche liegt unmittelbar an der A7, Abfahrt Schleswig Schuby. Über die B201, die die Westküste mit der Ostküste verbindet, steht zudem eine schnelle Querverbindung innerhalb Schleswig-Holsteins zur Verfügung. Die A7 führt von hier aus in weniger als 30 Minuten nach Flensburg und zur dänischen Grenze. Kiel liegt ca. 45 Minuten entfernt, nach Hamburg sind es ca. 1,5 Stunden.

Für jede Gewerbeflächenvermittlung benötigen wir von Ihnen einige Angaben zur Vorhabenbeschreibung. Im folgenden Formular können Sie uns diese Daten sicher und schnell übermitteln, sodass wir uns direkt bei Ihnen zurückmelden können.

Zur Vorhabenbeschreibung